Pergola żaluzjowa to nowoczesna konstrukcja, która łączy w sobie funkcjonalność i estetykę. W przeciwieństwie do tradycyjnych pergoli z zadaszeniem z tkaniny, pergola żaluzjowa oferuje zadaszenie wykonane z lameli aluminiowych lub drewnianych, co pozwala na łatwe dostosowanie ilości światła słonecznego wpadającego do przestrzeni pod nią. Dzięki temu staje się idealnym rozwiązaniem dla osób pragnących cieszyć się świeżym powietrzem i jednocześnie chronić się przed nadmiernym słońcem.
Budowa pergoli żaluzjowej może być prostym i satysfakcjonującym projektem DIY. W artykule przedstawimy proste kroki do samodzielnej budowy, które pomogą Ci stworzyć przestrzeń idealną do relaksu lub spotkań z rodziną i przyjaciółmi. Zaczniemy od wyboru odpowiednich materiałów, przez przygotowanie terenu, aż po montaż i personalizację pergoli, aby spełniała Twoje oczekiwania.Kluczowe informacje:
- Pergola żaluzjowa różni się od tradycyjnych pergoli zadaszeniem z lameli, co zapewnia lepszą kontrolę nad nasłonecznieniem.
- Wybór materiałów, takich jak drewno czy aluminium, ma kluczowe znaczenie dla trwałości i wyglądu pergoli.
- Proces budowy obejmuje kilka etapów: przygotowanie terenu, montaż stelażu oraz zamocowanie lameli.
- Stabilność pergoli można zapewnić poprzez odpowiednie techniki montażowe i zabezpieczenie materiałów przed warunkami atmosferycznymi.
- Personalizacja pergoli poprzez dodatki i styl może znacząco wpłynąć na jej estetykę i funkcjonalność.
Wybór odpowiednich materiałów do budowy pergoli żaluzjowej
Budując pergolę żaluzjową, kluczowym krokiem jest wybór odpowiednich materiałów. W zależności od preferencji estetycznych i funkcjonalnych, można zdecydować się na różne opcje, takie jak drewno czy aluminium. Każdy z tych materiałów ma swoje unikalne właściwości, które wpływają na trwałość, wygląd oraz koszty budowy pergoli.
Drewno, na przykład, jest naturalnym materiałem, który dodaje ciepła i charakteru każdemu ogrodowi. Popularne gatunki drewna, takie jak cedr czy sosna, oferują różne korzyści, ale wymagają regularnej konserwacji, aby zachować swoje właściwości. Z kolei aluminium jest materiałem nowoczesnym, odpornym na warunki atmosferyczne, co czyni je idealnym wyborem dla osób poszukujących niskiego poziomu konserwacji. W tej sekcji przyjrzymy się bliżej, jakie materiały są najlepsze do konstrukcji pergoli żaluzjowej.
Jakie materiały są najlepsze do konstrukcji pergoli?
Wybór materiałów do budowy pergoli żaluzjowej powinien być przemyślany i dostosowany do indywidualnych potrzeb. Cedr to jeden z najczęściej wybieranych materiałów, znany ze swojej odporności na gnicie oraz pięknego zapachu. Jest to materiał, który świetnie komponuje się z naturalnym otoczeniem i nadaje elegancki wygląd. Aluminium to natomiast opcja, która zapewnia nowoczesny wygląd i jest odporna na korozję, co sprawia, że jest idealna do użytku na zewnątrz. Warto również rozważyć materiały kompozytowe, które łączą w sobie zalety drewna i plastiku, oferując trwałość i łatwość w konserwacji.Zalety i wady lameli aluminiowych oraz drewnianych
Wybór między lamelami aluminiowymi a drewnianymi ma kluczowe znaczenie dla trwałości i estetyki pergoli żaluzjowej. Lamele aluminiowe są niezwykle odporne na warunki atmosferyczne, co sprawia, że nie wymagają częstej konserwacji. Są lekkie, a ich nowoczesny wygląd idealnie pasuje do współczesnych aranżacji ogrodowych. Z drugiej strony, drewno, takie jak cedr czy sosna, oferuje naturalny urok i ciepło, ale wymaga regularnego malowania i impregnacji, aby zachować swoje właściwości i estetykę.
Aluminium jest również bardziej odporne na uszkodzenia mechaniczne oraz korozję, co czyni je bardziej praktycznym wyborem na dłuższą metę. Z kolei drewno, mimo że może wymagać więcej uwagi, pozwala na łatwe dostosowanie i renowację, co jest atrakcyjne dla osób ceniących sobie naturalne materiały. Ostateczny wybór powinien być uzależniony od indywidualnych preferencji oraz warunków, w jakich pergola będzie użytkowana.
| Cecha | Lamele aluminiowe | Lamele drewniane |
| Koszt | Średni | Wysoki |
| Wymagana konserwacja | Niska | Wysoka |
| Trwałość | Bardzo wysoka | Średnia |
| Estetyka | Nowoczesna | Naturalna |
Krok po kroku: Budowa pergoli żaluzjowej
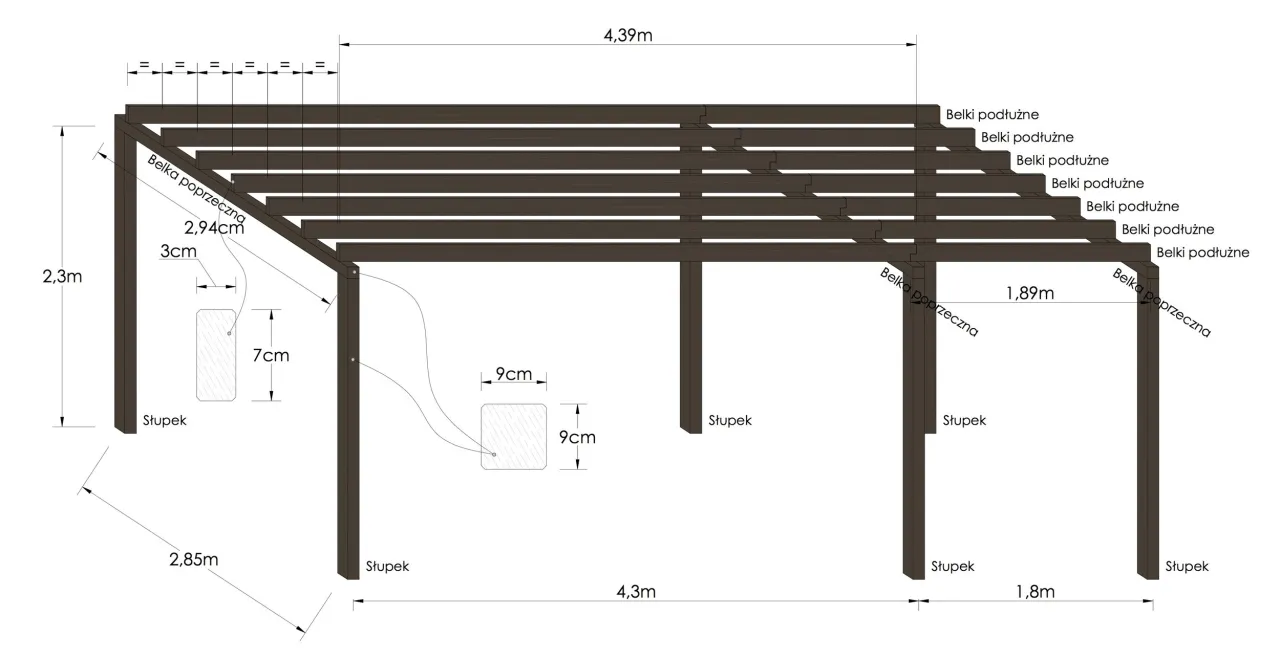
Budowa pergoli żaluzjowej jest procesem, który można zrealizować samodzielnie, stosując się do kilku prostych kroków. Na początku ważne jest, aby odpowiednio przygotować teren, na którym ma stanąć pergola. Należy upewnić się, że miejsce jest równe i dobrze odprowadzające wodę, aby uniknąć problemów z wilgocią. Pomiar miejsca jest kluczowy, aby pergola idealnie wpasowała się w przestrzeń.
Po przygotowaniu terenu można przystąpić do montażu stelażu. Ważne jest, aby używać solidnych materiałów i odpowiednich narzędzi, aby zapewnić stabilność konstrukcji. Stelaż powinien być mocno osadzony w ziemi lub na fundamentach, co zapewni jego trwałość. Gdy stelaż jest już zamocowany, można przystąpić do montażu lameli, które będą pełniły funkcję zadaszenia. Lamele można regulować, co pozwala na kontrolowanie ilości światła wpadającego pod pergolę.
Na koniec warto zadbać o detale, takie jak malowanie lub impregnacja drewna, aby zwiększyć jego odporność na czynniki atmosferyczne. Dobrze zaplanowana i wykonana pergola żaluzjowa stanie się nie tylko estetycznym elementem ogrodu, ale także funkcjonalną przestrzenią do wypoczynku.
Czytaj więcej: Czy fotowoltaika balkonowa się opłaca? Analiza systemu STREAM w praktyce
Przygotowanie terenu i pomiar miejsca pod pergolę
Przygotowanie terenu to kluczowy krok w budowie pergoli żaluzjowej. Należy zacząć od dokładnego wybrania miejsca, które będzie odpowiednie do montażu. Ważne jest, aby teren był równy i dobrze odsłonięty od przeszkód, takich jak drzewa czy inne budynki, które mogą rzucać cień na pergolę. Użyj poziomicy, aby upewnić się, że powierzchnia jest płaska, ponieważ wszelkie nierówności mogą wpłynąć na stabilność konstrukcji.
Po wybraniu odpowiedniego miejsca, przystąp do pomiaru. Zmierz wymiary pergoli, które zamierzasz zbudować, aby upewnić się, że pasują do dostępnej przestrzeni. Zaznacz miejsca, w których będą umieszczone słupy, używając sznurka budowlanego lub sprayu do oznaczania. Dokładne pomiary są kluczowe dla prawidłowego montażu stelażu i lameli, co zapewni trwałość i estetykę całej konstrukcji.
Montaż stelażu i zamocowanie lameli
Montaż stelażu to kluczowy etap w budowie pergoli żaluzjowej. Rozpocznij od osadzenia słupów w oznaczonych miejscach, upewniając się, że są one stabilne i dobrze osadzone w ziemi. Możesz użyć betonu, aby zwiększyć ich trwałość. Po zamocowaniu słupów, przystąp do instalacji poprzecznych belek, które będą stanowiły podstawę dla lameli. Upewnij się, że wszystkie elementy są równo zamocowane, aby uniknąć późniejszych problemów z konstrukcją.
Po zamontowaniu stelażu, czas na zamocowanie lameli. Lamele należy przymocować zgodnie z instrukcjami producenta, co zazwyczaj obejmuje użycie wkrętów lub klipsów. Upewnij się, że są one odpowiednio rozmieszczone, aby zapewnić pełną funkcjonalność pergoli, pozwalając na regulację nasłonecznienia. Po zakończeniu montażu, sprawdź stabilność całej konstrukcji, aby mieć pewność, że wszystko jest solidnie zamocowane.
Czytaj więcej: Jak ozdobić ogród w modny sposób - praktyczne pomysły na piękną przestrzeń
Praktyczne wskazówki dotyczące konstrukcji pergoli
Aby zapewnić stabilność i długowieczność pergoli żaluzjowej, warto zwrócić uwagę na kilka praktycznych wskazówek. Po pierwsze, upewnij się, że fundamenty są odpowiednio przygotowane. W przypadku pergoli drewnianej, zastosowanie impregnowanego drewna oraz mocnych, odpornych na warunki atmosferyczne materiałów, takich jak stal nierdzewna, może znacząco zwiększyć trwałość konstrukcji. Dobrze zaplanowane mocowanie elementów stelażu oraz regularne kontrole stanu technicznego pomogą w uniknięciu problemów w przyszłości.
Po drugie, konserwacja jest kluczowym aspektem utrzymania pergoli w dobrym stanie. Regularne czyszczenie lameli oraz ich impregnacja co kilka lat pozwoli na zachowanie estetyki oraz funkcjonalności. Warto również monitorować stan farby lub lakieru, jeśli pergola jest malowana, aby uniknąć łuszczenia się i korozji materiałów. Dbanie o pergolę to nie tylko kwestia estetyki, ale także bezpieczeństwa użytkowników.
Jak zapewnić stabilność i trwałość pergoli?
Aby zapewnić stabilność i trwałość pergoli żaluzjowej, kluczowe jest zastosowanie odpowiednich technik wzmacniających. Po pierwsze, warto zainwestować w solidne fundamenty, które będą w stanie utrzymać ciężar konstrukcji. Można również zastosować dodatkowe podpory w miejscach, gdzie pergola będzie narażona na silne wiatry lub obciążenia. W przypadku drewnianych elementów, ich impregnacja oraz użycie odpowiednich śrub i klamer ze stali nierdzewnej znacząco wpłynie na ich odporność na warunki atmosferyczne.
Warto także regularnie sprawdzać, czy wszystkie elementy są prawidłowo zamocowane i nie wykazują oznak zużycia. W razie potrzeby, można dokonać wymiany uszkodzonych lub osłabionych części. Dbanie o te szczegóły pomoże w zapewnieniu, że pergola będzie służyć przez wiele lat, zachowując jednocześnie swoje walory estetyczne i funkcjonalne.
Techniki malowania i zabezpieczania materiałów
Malowanie i zabezpieczanie materiałów użytych w budowie pergoli żaluzjowej jest kluczowe dla jej długowieczności i estetyki. W przypadku drewnianych lameli, zaleca się stosowanie wysokiej jakości farb lub lakierów, które są odporne na działanie promieni UV oraz wilgoci. Dzięki temu drewno nie tylko zachowa swój naturalny wygląd, ale także ochroni się przed grzybami i insektami.
Dla lameli aluminiowych, proces zabezpieczania może obejmować stosowanie specjalnych powłok ochronnych, które zapobiegają korozji. Ważne jest, aby przed malowaniem dokładnie oczyścić powierzchnię z zanieczyszczeń, aby farba dobrze się trzymała. Regularne konserwacje, takie jak ponowne malowanie lub nałożenie nowej warstwy zabezpieczającej co kilka lat, pomogą utrzymać pergolę w doskonałym stanie przez długi czas.

Design i personalizacja pergoli żaluzjowej
Personalizacja pergoli żaluzjowej to doskonały sposób na dostosowanie jej do indywidualnych potrzeb oraz stylu ogrodu. Można wybierać spośród różnych kształtów, kolorów i materiałów, aby stworzyć unikalną przestrzeń. Dodatkowe elementy, takie jak oświetlenie LED, zasłony czy rośliny pnące, mogą dodać charakteru i funkcjonalności. Dzięki różnorodności dostępnych opcji, pergola staje się nie tylko miejscem wypoczynku, ale także piękną ozdobą ogrodu.
Warto również rozważyć zastosowanie różnych stylów architektonicznych, takich jak nowoczesny, rustykalny czy klasyczny, aby pergola harmonizowała z resztą przestrzeni. Dobrze dobrane dodatki, takie jak meble ogrodowe czy dekoracyjne poduszki, mogą poprawić komfort korzystania z pergoli. Dzięki tym wszystkim elementom, pergola żaluzjowa stanie się idealnym miejscem do relaksu i spędzania czasu z rodziną oraz przyjaciółmi.
Jak wykorzystać pergolę żaluzjową do stworzenia strefy relaksu
Wykorzystanie pergoli żaluzjowej jako centralnego punktu w ogrodzie otwiera nowe możliwości aranżacyjne. Można ją przekształcić w strefę relaksu, dodając elementy takie jak wygodne meble ogrodowe, hamaki czy poduszki. Tworząc takie miejsce, warto również pomyśleć o integracji z naturą poprzez umieszczenie donic z roślinami pnącymi, które nie tylko ozdobią pergolę, ale również zapewnią dodatkowy cień i intymność. Warto wybierać rośliny, które są łatwe w pielęgnacji, takie jak bluszcz czy wisteria, które szybko się rozrastają i dodają uroku.
Dodatkowo, rozważ zastosowanie nowoczesnych technologii, takich jak inteligentne systemy zarządzania, które pozwalają na automatyczne otwieranie i zamykanie lameli w zależności od warunków pogodowych. Dzięki temu, pergola staje się jeszcze bardziej funkcjonalna, a użytkownicy mogą cieszyć się optymalnym nasłonecznieniem lub cieniem w każdej chwili. Takie rozwiązania nie tylko podnoszą komfort użytkowania, ale także mogą zwiększyć wartość nieruchomości, czyniąc ją bardziej atrakcyjną dla potencjalnych nabywców.